止回阀

H44F46旋启式衬氟止回阀
产品简介
News Center
新闻中心产品型号:H44F46
公称通径:DN15-DN500
公称压力:0.6MPa-1.6MPa
适用介质:酸、碱、腐蚀性介质
适用温度:0℃-100℃
阀体材质:铸铁、碳钢、不锈钢
连接方式:法兰连接
设计标准 | GB 12236 |
结构长度 | GB 12221 |
检验试验 | GB/T13927 |
法兰标准 | JB/T79-94;GB 9113.1-26 |
| 零件名称 | 灰铸铁 | 铸钢 | 不锈耐酸铸钢 | 低碳不锈耐酸铸钢 | ||
| Z | C | P | R | PL | RL | |
| 阀体/阀盖 | HT250 | WCB | CF8 | CF8M | CF3 | CF3M |
| 阀瓣/阀杆 | 35 | 1Cr13 | 1Cr18Ni9 | 1Cr18Ni12Mo2Ti | 00Cr18Ni10 | 00Cr17Ni14Mo2 |
| 衬里/阀座 | PCTEF(F3),FEP(F46),PFA(可溶F4),PP,PO | |||||
| 紧固螺栓 | WCB | 1Cr17Ni2 | 1Cr18Ni9Ti | |||
| 螺母 | PTFE(F4) | CF8 | CF8 | |||

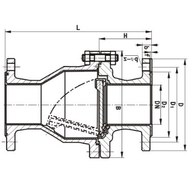
| DN | L | D | D1 | D2 | f | b | B |
| 15 | 130 | 80 | 55 | 40 | 2 | 12 | 105 |
| 20 | 150 | 90 | 65 | 50 | 2 | 14 | 115 |
| 25 | 160 | 100 | 75 | 60 | 2 | 14 | 128 |
| 32 | 180 | 120 | 90 | 70 | 2 | 14 | 145 |
| 40 | 200 | 130 | 100 | 80 | 3 | 14 | 160 |
| 50 | 230 | 140 | 110 | 90 | 3 | 14 | 178 |
| 65 | 290 | 160 | 130 | 110 | 3 | 14 | 205 |
| 80 | 310 | 190 | 150 | 128 | 3 | 16 | 230 |
| 100 | 350 | 210 | 170 | 148 | 3 | 16 | 255 |
| 125 | 400 | 240 | 200 | 178 | 3 | 18 | 305 |
| 150 | 480 | 265 | 225 | 202 | 3 | 18 | 345 |
| 200 | 600 | 320 | 280 | 258 | 3 | 20 | 415 |
| 250 | 650 | 375 | 335 | 312 | 3 | 22 | 490 |
| 300 | 700 | 440 | 395 | 365 | 4 | 22 | 540 |
| 350 | 790 | 490 | 445 | 415 | 4 | 22 | 585 |
| 400 | 914 | 540 | 595 | 565 | 4 | 22 | 635 |
| 450 | 978 | 595 | 550 | 520 | 4 | 22 | 680 |
| 500 | 978 | 645 | 600 | 570 | 4 | 24 | 740 |
在线留言