止回阀

H41F46升降式衬氟止回阀
产品简介
News Center
新闻中心产品型号:H41F46
公称通径:DN15-DN300
公称压力:1.6Mpa-2.5Mpa
适用温度:-10℃~180℃
适用介质:酸、碱、盐、王水、有机酸等强腐蚀性介质
阀体材质:铸铁、铸钢、碳钢
连接方式:法兰连接
设计标准 | GB 12236 |
结构长度 | GB 12221 |
检验试验 | GB/T13927 |
法兰标准 | JB/T79-94;GB 9113.1-26 |
压力温度等级 | GB/T 12224-2005 |
灰铸铁 | 铸钢 | 不锈耐酸铸钢 | 超低碳不锈耐酸铸钢 | |||
Z | C | P | R | PL | RL | |
阀体/阀盖 | HT250 | WCB | CF8 | CF8M | CF3 | CF3M |
阀瓣/阀杆 | 35 | 1Cr13 | 1Cr18Ni9 | 1Cr18Ni12Mo2Ti | 00Cr18Ni10 | 00Cr17Ni14Mo2 |
衬里/阀座 | PCTEF(F3),FEP(F46),PFA(可溶F4),PP,PO | |||||
紧固螺栓 | WCB | 1Cr17Ni2 | 1Cr18Ni9Ti | |||
螺母 | PTFE(F4) | CF8 | CF8 | |||

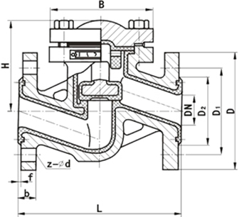
公称通经 | L | D | D1 | D2 | f | b | Z-φd | |
DN(mm) | NPS(inch) | PN1.6MPa | ||||||
15 | 1/2 | 130 | 130 | 95 | 65 | 3 | 15 | 4-φ14 |
20 | 3/4 | 150 | 150 | 105 | 75 | 3 | 17 | 4-φ14 |
25 | 1 | 160 | 160 | 115 | 85 | 3 | 17 | 4-φ14 |
32 | 1-1/4 | 180 | 180 | 135 | 100 | 3 | 19 | 4-φ18 |
40 | 1-1/2 | 200 | 200 | 145 | 110 | 3 | 19 | 4-φ18 |
50 | 2 | 230 | 230 | 160 | 125 | 3 | 21 | 4-φ18 |
65 | 2-1/2 | 290 | 290 | 180 | 145 | 3 | 21 | 4-φ18 |
80 | 3 | 310 | 310 | 195 | 160 | 3 | 22 | 4-φ18 |
100 | 4 | 350 | 350 | 215 | 180 | 3 | 23 | 8-φ18 |
125 | 5 | 400 | 400 | 245 | 210 | 4 | 24 | 8-φ18 |
150 | 6 | 480 | 480 | 280 | 240 | 4 | 26 | 8-φ23 |
200 | 8 | 600 | 495 | 335 | 295 | 4 | 26 | 12-φ23 |
250 | 10 | 622 | 622 | 405 | 355 | 4 | 28 | 12-φ25 |
300 | 12 | 698 | 698 | 460 | 410 | 4 | 34 | 12-φ25 |
350 | 14 | 787 | 787 | 520 | 470 | 4 | 38 | 16-φ25 |
400 | 16 | 914 | 914 | 580 | 525 | 4 | 40 | 16-φ30 |
在线留言