截止阀

KJ41F抗生素截止阀
产品简介
News Center
新闻中心KJ41F抗生素截止阀主要应用于生物发酵、医药和啤酒发酵、氨基酸发酵、生物农药发酵、生物肥料发酵、各种抗生素发酵、生物、生化、化学制药的物料、水、汽、冷的控制等领域,底部可以根据客户需要开设排泄孔,耐高温使用寿命长,无死角达到零泄漏水平。
1、KJ41F抗生素截止阀延续抗生素截止阀的优点,设计合理,无死角,能有效的降低制药生产中的染菌率,为抗生素无菌生产提供了可靠的保证;
2、KJ41F抗生素截止阀结构精密,密封性能好,杜绝了跑、冒、滴、漏、节约了能源消耗,为车间文明生产提供了有利条件;
3、KJ41F抗生素截止阀材质可靠、制作精细、经久耐用,密封采用聚四氟乙烯,耐腐蚀性能强,大修时只需更换垫片,拆卸容易、维修方便,降低了成本、提高了经济效益;
4、KJ41F抗生素截止阀使用范围广,不仅代替接种站的三通隔膜阀,而且可以广泛使用在原料药车间的结晶罐等工艺管道上,效果良好。
设计与制造:GB/T12235
法兰尺寸:JB/T79.1
结构长度:GB/T12221
检验与试验:JB/T9092
公称压力 | 1.6 MPa | |
试验压力 | 强度试验 | 2.4 MPa |
密封试验 | 1.76 MPa | |
上密封试验 | 1.76 MPa | |
气密封试验 | 0.6 MPa | |
最高工作温度 | 120 ℃ | |
适用介质 | 水、蒸汽、食品等 | |

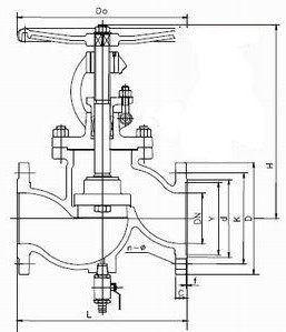
公称通径 | 主要外形尺寸和连接尺寸 | |||||||
L | D | D1 | D2 | b | Z-d | H | D0 | |
15 | 130 | 95 | 65 | 45 | 14-2 | 4-Φ14 | 170 | 120 |
20 | 150 | 105 | 75 | 55 | 14-2 | 4-Φ14 | 190 | 140 |
25 | 160 | 115 | 85 | 65 | 14-2 | 4-Φ14 | 205 | 160 |
32 | 180 | 135 | 100 | 78 | 16-2 | 4-Φ18 | 270 | 180 |
40 | 200 | 145 | 110 | 85 | 16-3 | 4-Φ18 | 310 | 200 |
50 | 230 | 160 | 125 | 100 | 16-3 | 4-Φ18 | 358 | 240 |
65 | 290 | 180 | 145 | 120 | 18-3 | 4-Φ18 | 373 | 240 |
80 | 310 | 195 | 160 | 135 | 20-3 | 8-Φ18 | 435 | 280 |
100 | 350 | 215 | 180 | 155 | 20-3 | 8-Φ18 | 500 | 300 |
125 | 400 | 245 | 210 | 185 | 22-3 | 8-Φ18 | 614 | 320 |
150 | 480 | 280 | 240 | 210 | 24-3 | 8-Φ23 | 674 | 360 |
200 | 600 | 335 | 295 | 265 | 26-3 | 12-Φ23 | 811 | 400 |
250 | 650 | 405 | 355 | 320 | 30-3 | 12-Φ25 | 969 | 450 |
300 | 750 | 460 | 410 | 375 | 30-3 | 12-Φ25 | 1145 | 580 |
350 | 850 | 520 | 470 | 435 | 34-4 | 16-Φ25 | 1280 | 640 |
400 | 980 | 580 | 525 | 485 | 36-4 | 16-Φ30 | 1452 | 640 |
在线留言