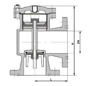
水利控制阀

液压水位控制阀
产品简介
News Center
新闻中心产品名称:液压水位控制阀
产品型号:H142X
公称通径:DN40~DN350
结构形式:液压浮球式
工作压力:1.0MPa~1.6MPa
连接方式:法兰
适用温度:-0ºC~+80ºC
功能作用:控制水位
阀体材质:铸铁、铸钢、不锈钢、黄铜
制造标准:国标GB、德国DIN、美国API、ANSI
适用介质:水、污水
H142X液压水位控制阀是一种自动控制水箱、水塔液面水位高度的水力控制阀。当水面下降超过预设值时,打开浮球阀,活塞上腔室压力降低,活塞上下形成压差,在此压差作用下阀瓣打开进行供水作业;当水位上升到预设高度时,浮球阀关闭,活塞上腔室压力不断增大致使阀瓣关闭停止供水。如此往复自动控制液面在设定高度,实现自动供水功能。
当水池或水塔内水位下降,浮球阀开启排水时,进水管内有压水将阀内活塞托起,密封面打开,液压水位控制阀阀门即开启供水,当水位上升到控制阀时,浮球阀关闭,活塞下移将密封面封闭,阀门即停止供水。
1、运用液压原理控制,结构新颖合理。
2、工作平稳可靠。在规定的使用压力范围内,可保证无水锤冲击。
3、重量轻,体积小。
4、安装维修方便。
将液压水位控制阀垂直固定在进水管上,然后将控制管、截止阀和浮球阀连接旋紧在该阀上即可。该阀进水管和出水管连接法兰H142X-4T-A为0.6MPa标准法兰;H142X-10-A为1MPa标准法兰。进水管直径应大于或等于阀门公称通径,出水口应低于浮球阀。浮球阀安装应距离水管一米以上;在水箱内出水管高于水位线处钻一小孔,以防直空回水。使用时,截止阀应全开,如同一水池安装二只以上阀则应保持同一水平面。因主阀关闭要滞后浮球阀关闭约30~50秒,故水箱要有足够的空余容积,以防溢水。
为防止杂质、砂粒进入阀内引起工作失灵,阀前应装过滤器。如安装在地下水池,则应在地下泵房安装报警装置。
液压水位阀前是设止回阀,液压水位阀下游要安装手动闸阀或碟阀,起到硬关闭的作用;如果液压水位阀为了压力或其它考虑进水口安到水位以下的,要考虑安装止回阀,防止水回流。

型号 | 规格 | G(in) | D(mm) | A(mm) | B(mm) | H(mm) | n-d |
H142X | 50 | 1/2 | 160 | 102 | 90 | 195 | 4-18 |
65 | 1/2 | 180 | 116 | 116 | 260 | 4-18 | |
80 | 3/4 | 195 | 123 | 120 | 270 | 8-18 | |
100 | 3/4 | 220 | 135 | 130 | 295 | 8-18 | |
150 | 3/4 | 285 | 183 | 158 | 330 | 8-22 | |
200 | 11/4 | 340 | 228 | 228 | 435 | 8-22\12-22 |

在安装液压阀前,应注意将管道冲洗干净,液压阀在使用中,应视水质情况选择保养时间,一般一年保养一至二次,当水质清洁度较差时,需适当增加保养次数。具体保养方法如下:
(1)关闭该阀前的闸阀。
(2)旋下阀盖上的螺栓。
(3)取出阀门内部活塞、活塞杆和导向盖等。
(4)旋下活塞杆两端螺母。
(5)拆下压盖、密封圈、阀瓣。
(6)拆下导向压盖、密封圈、阀瓣。拆卸后,应除去各零件的水垢和各种污物,用钢丝疏通节流螺母上小孔,更换已损坏的密封件。装配顺序和拆卸顺序相反。
在线留言